Oferta – Osiedle przy Słonecznej

Pragniemy oddać Państwu dom wykonany w najwyższym standardzie, zawierający następujący wykaz wykonanych prac:

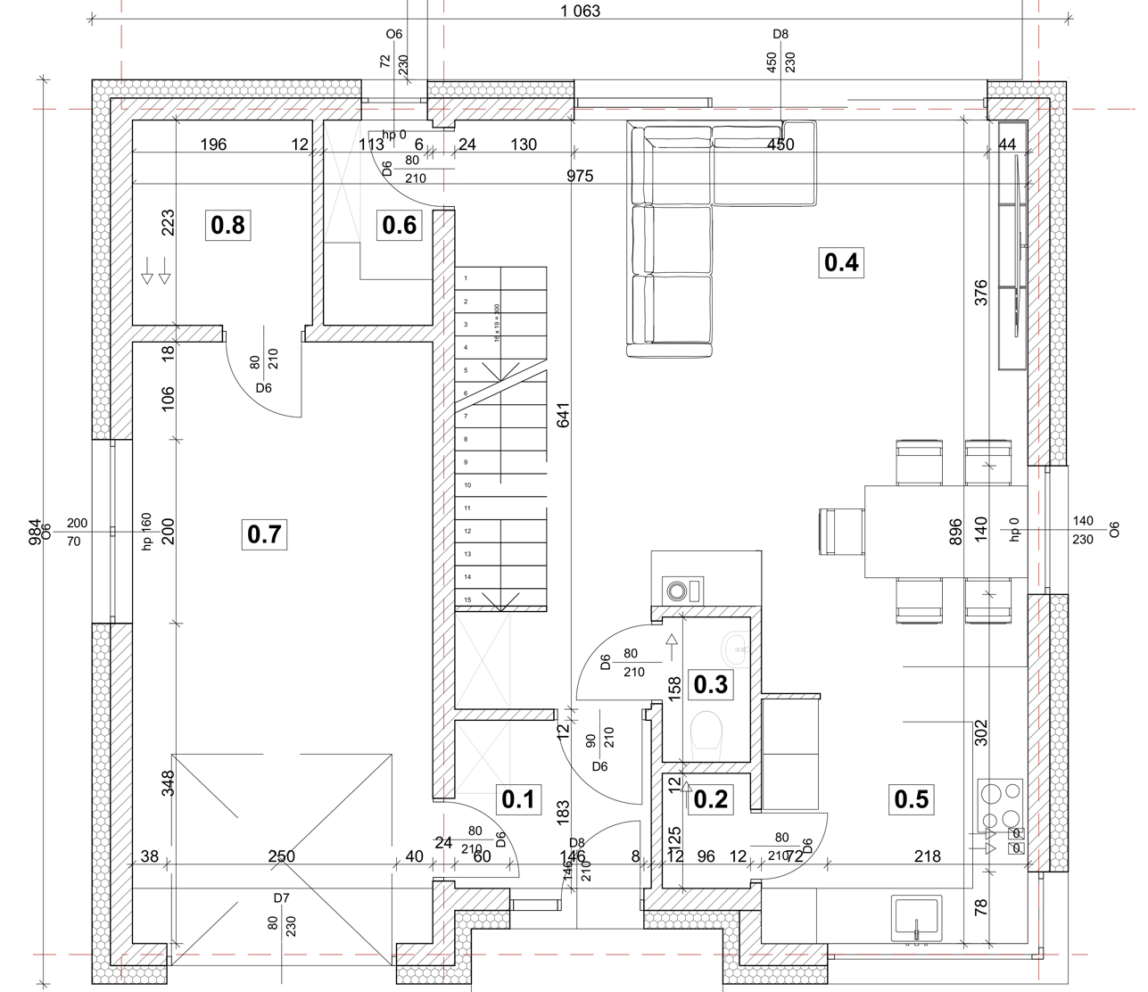
Rzut parteru

Wiatrołap (0.1) - 3,78m²
Pierwsze pomieszczenie po wejściu do domu, które pełni funkcję przejściową i chroni wnętrze przed wychłodzeniem. Miejsce na szafę na buty i kurtki, co zwiększa komfort użytkowania.

Spiżarnia (0.2) - 1,12m²
Idealne miejsce na przechowywanie żywności i sprzętów kuchennych. Zlokalizowana tuż przy kuchni, co zwiększa wygodę codziennego użytkowania.

Toaleta(0.3) - 1,42m²
Mała, ale funkcjonalna, przydatna dla odwiedzających i domowników. Blisko salonu i kuchni, co poprawia komfort korzystania.

Salon z jadalnią (0.4) - 36,83m²
Obszerna przestrzeń dzienna łącząca funkcję wypoczynkową i jadalnianą. Duże okna zapewniają mnóstwo naturalnego światła. Otwarty układ sprzyja integracji domowników.

Kuchnia (0.5) - 8,56m²
Wygodna, funkcjonalnie połączona z salonem i jadalnią. Miejsce na wyspę kuchenną lub dodatkowe blaty robocze. Widok na ogród daje przyjemność gotowania.

Garderoba (0.6) - 2,52m²
Dodatkowe pomieszczenie przeznaczone na przechowywanie odzieży i akcesoriów. Odpowiednio zaprojektowana przestrzeń pozwala na wygodne organizowanie ubrań, a także może pełnić funkcję dodatkowego schowka na domowe przedmioty.

Garaż jednostanowiskowy (0.7) - 21,02m²
Duża przestrzeń, umożliwiająca przechowywanie zarówno samochodu, jak i sprzętu ogrodowego. Bezpośrednie wejście do budynku, co jest wygodne w codziennym użytkowaniu.

Kotłownia / pomieszczenie techniczne (0.8) - 4,21m²
Miejsce na instalacje grzewcze i inne systemy techniczne domu. Dodatkowa przestrzeń na narzędzia lub sprzęty.

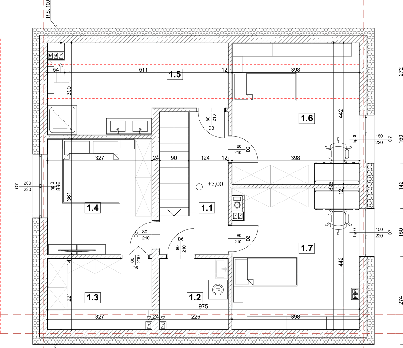
Rzut poddasza

Komunikacja i klatka schodowa (1.1) - 6,46m²
Centralnie umieszczona klatka schodowa zapewnia łatwy dostęp do wszystkich pomieszczeń. To dobre rozwiązanie pod względem funkcjonalnym, ponieważ minimalizuje konieczność długich korytarzy.

Dodatkowe pomieszczenia (1.2 i 1.3) - 4,51m² / 6,97m²
Mogą pełnić rolę garderoby lub schowka. Są stosunkowo niewielkie, ale praktyczne, zapewniając dodatkową przestrzeń do przechowywania.

Główna sypialnia (1.4) - 11,59m²
Przestronna, dobrze doświetlona dzięki oknom. Bezpośredni dostęp do garderoby (1.3), co daje komfort dla domowników.

Łazienka (1.5) - 13,62m²
Bardzo funkcjonalnie zaprojektowana, z miejscem na wannę, prysznic i podwójną umywalkę. Znajduje się blisko wszystkich sypialni, co zapewnia wygodę użytkowania.

Dwie dodatkowe sypialnie (1.6 i 1.7) - 17,26m² / 16,85m²
Każda z nich posiada wystarczająco dużo miejsca na łóżko, biurko i szafę. Okna zapewniają dobry dostęp do naturalnego światła, co jest istotne w pokojach dziecięcych lub gościnnych.

Widok budynku 1

Nowoczesna bryła budynku z przestronnym tarasem.

Widok budynku 2

Duże przeszklenia zapewniają doskonałe doświetlenie wnętrz.

Widok budynku 3

Elegancka elewacja z drewnianymi akcentami.

Widok budynku 3

Funkcjonalny garaż i minimalistyczny design.

Widok budynku 3

Nowoczesny dom jednorodzinny z przestronnym tarasem i dużymi przeszkleniami, zapewniającymi jasne wnętrza oraz otwartą przestrzeń do relaksu w ogrodzie.

Widok budynku 3

Stylowy budynek z elegancką elewacją i drewnianymi akcentami, harmonijnie komponujący się z otaczającą zielenią i naturalnym krajobrazem.